Computer Aided Design (CAD) in Shipley
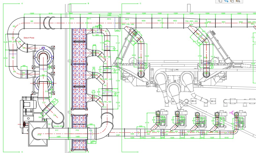
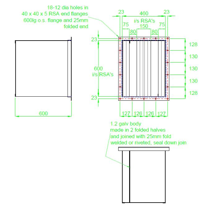
At D&E Metal Fabrications Ltd you can rely on the expertise of our office staff to bring your project to life in 2D or 3D using CAD software. We have over 25 years’ experience in drafting and technical drawing. All our fabrication work is produced from drawings ensuring consistency and accuracy.
We are based in Shipley, but can supply drawings across the North of England.
